home page > Annunci immobiliari in Italia > Marche > Pesaro e Urbino > Pesaro > appartamenti in vendita > Scheda immobile

Appartamento in vendita a Pesaro

COMPILA IL MODULO SOTTOSTANTE PER RICEVERE MAGGIORI INFORMAZIONI







Invia la richiesta ad altre agenzie
Accetto il trattamento dei miei dati



Teamcasa

Via nino bixio 25/1
61121 Pesaro (PU)

0721371235    Riferimenti: PACINI/ROBERTO

Pesaro
Prezzo: € 228.000
E
3
1
130
1



Descrizione:
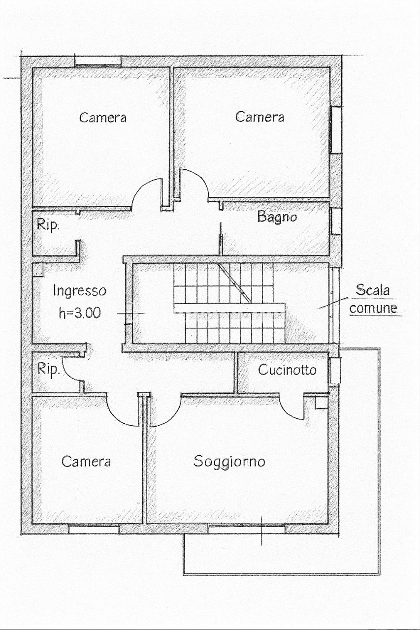
Immobile opzionato, visite sospese!!!pantano bassa - tranquillita' e spazi esterni! in una delle zone pi๠richieste e tranquille di pesaro, pantano bassa, proponiamo in vendita un ampio e versatile appartamento di 105 mq, situato in una riservata perpendicolare di via ciro menotti, lontana dal traffico e vicinissima al centro.questa à la soluzione ideale per chi cerca la tranquillità- di una zona residenziale e la comodità- di avere ogni servizio a portata di mano, con il grande vantaggio di uno spazio esterno privato e carrabile.caratteristiche principali:ampio scoperto esclusivo carrabile (50 mq): perfetto per far giocare i bambini in sicurezza, ospitare i tuoi amici a quattro zampe o goderti pranzi e cene all'aperto nella massima privacy.entrata carrabile: un ampio locale carrabile completa la proprietà-, offrendo spazio extra per hobby o un comodo deposito.metratura generosa (105 mq): ideale per una famiglia, con la possibilità- di ottimizzare gli spazi.balcone (11 mq): un comodo sfogo esterno aggiuntivo.composizione interna & potenziale:l'immobile si compone attualmente di un luminoso soggiorno, sala da pranzo separata, cucinotto, due ampie camere matrimoniali, bagno e due pratici ripostigli.con un piccolo intervento di ridistribuzione interna, à possibile ricavare facilmente una comoda terza camera da letto, rendendo questa soluzione perfetta anche per famiglie pi๠numerose o per chi necessita di uno studio aggiuntivo. Abbiamo anche preparato un rendering per mostrarvi questa eccellente possibilità-!il bagno à stato completamente ristrutturato e gli infissi esterni sono stati sostituiti circa otto anni fa.le utenze autonome consentono la massima libertà- nella gestione dei consumi. La caldaia à appena stata sostituital'appartamento sarà- libero e disponibile per il rogito entro settembre 2026.prezzo richiesto: euro 228.000codice: 11844contattaci subito al numero per ricevere maggiori dettagli e fissare una visita! classe energetica: e - ipe: 185.28kwh/mq anno




Caratteristiche immobile:
Codice inserzione: 1776137940
Rif. Annuncio: 11844
Provincia: Pesaro e Urbino
Comune: Pesaro
Superficie (Mq) : 130 Mq.
Tipo immobile: Appartamento
Piano: 1
Camere: 3
Stato al rogito: Libero
Tipologia giardino : Privato
Bagni: 1

Costi:
Prezzo € 228.000


Efficienza energetica:
Classe energetica: E
Indice di prestazione energetica (EPgl): 185.28 kWh/mq annui
Riscaldamento: autonomo